반응형
총사업비 4,460억 원 투입... 2032년 하빈면 이전 개장 목표
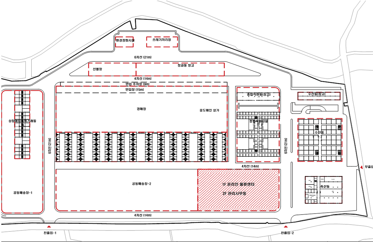
스마트 물류체계 도입으로 첨단 도매시장 건립 추진

대구광역시의 대구농수산물도매시장 시설현대화사업이 기획재정부 2024년 제7차 재정사업평가위원회에서 예비타당성조사 대상으로 선정됐다고 31일 밝혔다.
이번 선정은 지난 4월 농림축산식품부 공영도매시장 시설현대화사업 공모사업 선정에 이은 후속 성과로, 민선 8기 공약사업인 하빈면 이전 사업이 본격화되는 계기가 될 전망이다.
시설현대화 사업에는 총 4,460억 원(국비 1,004억 원, 지방비 3,456억 원)이 투입될 예정이다. 새로운 도매시장은 최적 동선을 위한 일방향 프로세스 기능 배치, 공동선별장, 청과동 자동창고, 통합 경매장, 온라인물류센터 등 첨단 시설을 갖추게 된다.
현재 북구 매천동에 위치한 대구농수산물도매시장은 전국 3위 규모의 거점 공영도매시장으로서 한강 이남 농수산물 유통의 중심 역할을 담당해 왔다. 그러나 개장 36년 경과로 인한 시설 노후화, 물류 동선의 비효율성, 설계 물량 대비 200% 수준의 초과거래로 인한 공간 부족 등 여러 문제점을 안고 있었다.
김정섭 대구광역시 경제국장은 "이번 예타 대상 선정을 계기로 단순한 시설 개선을 넘어 미래 유통환경 변화에 대응하는 새로운 패러다임을 구축하겠다"고 밝혔다.
출처: 대구광역시청 보도자료
반응형